川と公園に面する地域図書館 Green island

大西渥也/建築学科
川と公園に面する地域図書館 Green island
川と公園に面する地域図書館 Green island
川と公園に面する地域図書館 Green island
川と公園に面する地域図書館 Green island

屋外のテラスは川や公園がそれぞれだけ見えるのではなく、どちらも面するように円弧の形にすることを意識した。

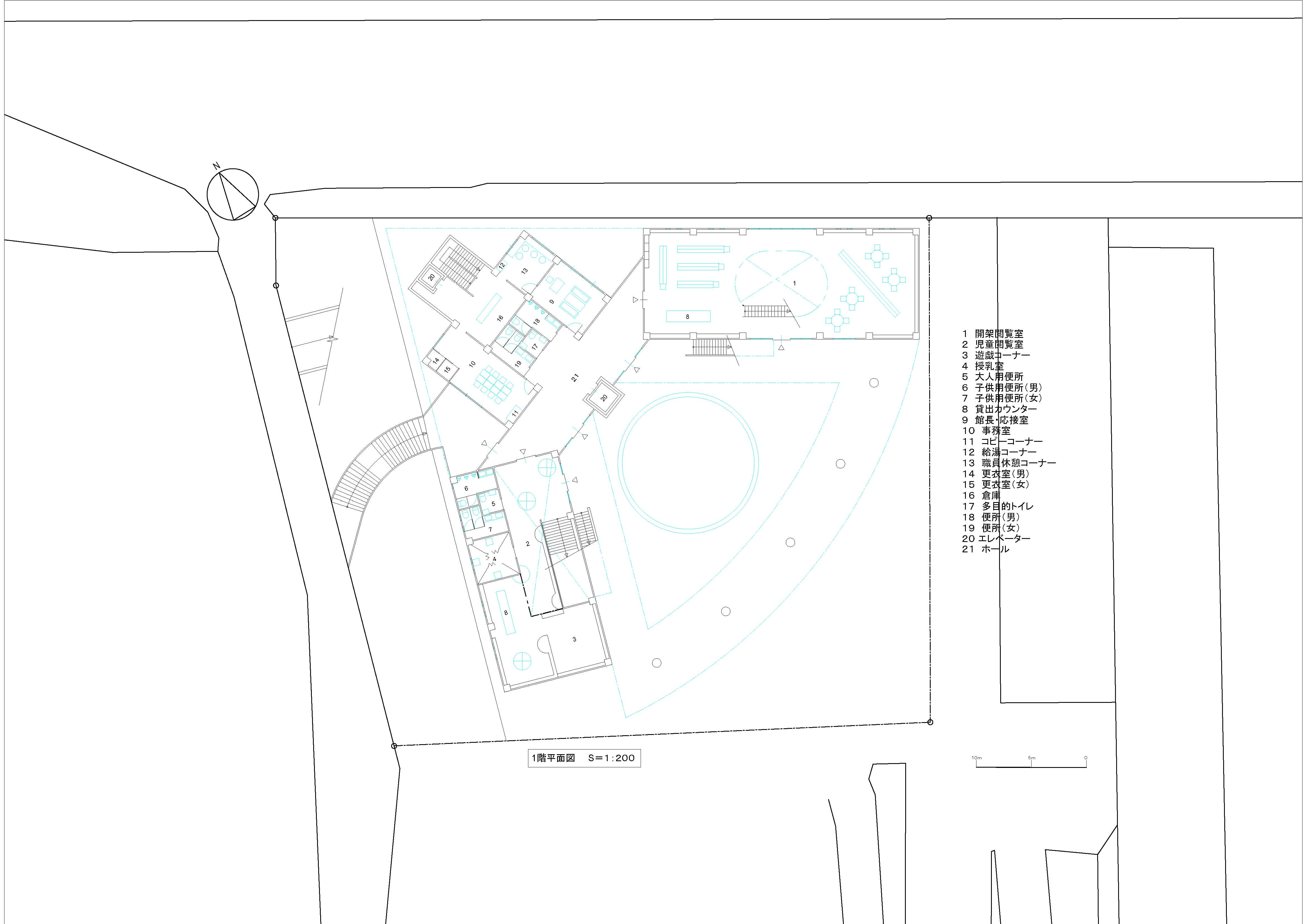
棟を用途ごとに分け、どのように配置をするかを考える時、ただ単に不規則に配置するのではなく、軸を決めて規則正しく見栄えも綺麗になるように意識した。

屋根はただかけるだけではなく、緑化をすることで断熱材の役割を果たし、環境にも優しいつくりにし、吹き抜けを設けることで広場にも光が入るよう意識した。

シンボルツリーのある広場には、ベンチを配置して、屋外のテラスには景色を見ながらコミュニケーションを取れるように椅子と机を配置した。

閉架車庫や図書受入整理室は地下に入れることで、来館者との動線が交錯しないように意識した。